江蘇振強機械科技股份有限公司 >> 產品中心 >> 振動輸送機 >> 空氣輸送斜槽(XZ型)
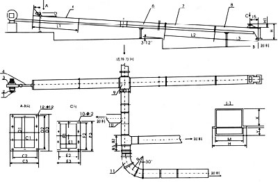
空氣輸送斜槽主要組成零部件有:進料溜管、直槽體、槽架、窺視窗、出料溜管。
空氣輸送斜槽在輸送物料的過程中沒有運動的零件,所以與同功率的膠帶輸送機、螺旋輸送機、刮板輸送機相比,具有磨損少、易維護、耗電少、用材省、無噪音、密閉好、構造簡單、操作安全可靠等優勢!
空氣斜槽輸送機由數個薄鋼制成的槽子聯接組成,并沿其輸送方向布置成一定的斜度。空氣輸送斜槽槽體沿著輸送方向安裝成向下傾斜4%~6%的斜度。
震動輸送機合金粉生產工藝相對簡單,這三種銅粉的生產工藝流程依次為: 電解銅粉生產工藝流程為電解銅板-熔煉-電解-洗粉-真空干燥-分級-合批-包裝。 低松裝密度水霧化銅粉生產工藝流程為:電解銅板-熔煉-水霧化-真空烘干-高溫氧化-破碎空氣輸送斜槽-..
? 2022 江蘇振強機械科技股份有限公司 蘇ICP備16037017號-2 技術支持:天正企劃